Date + Percolate


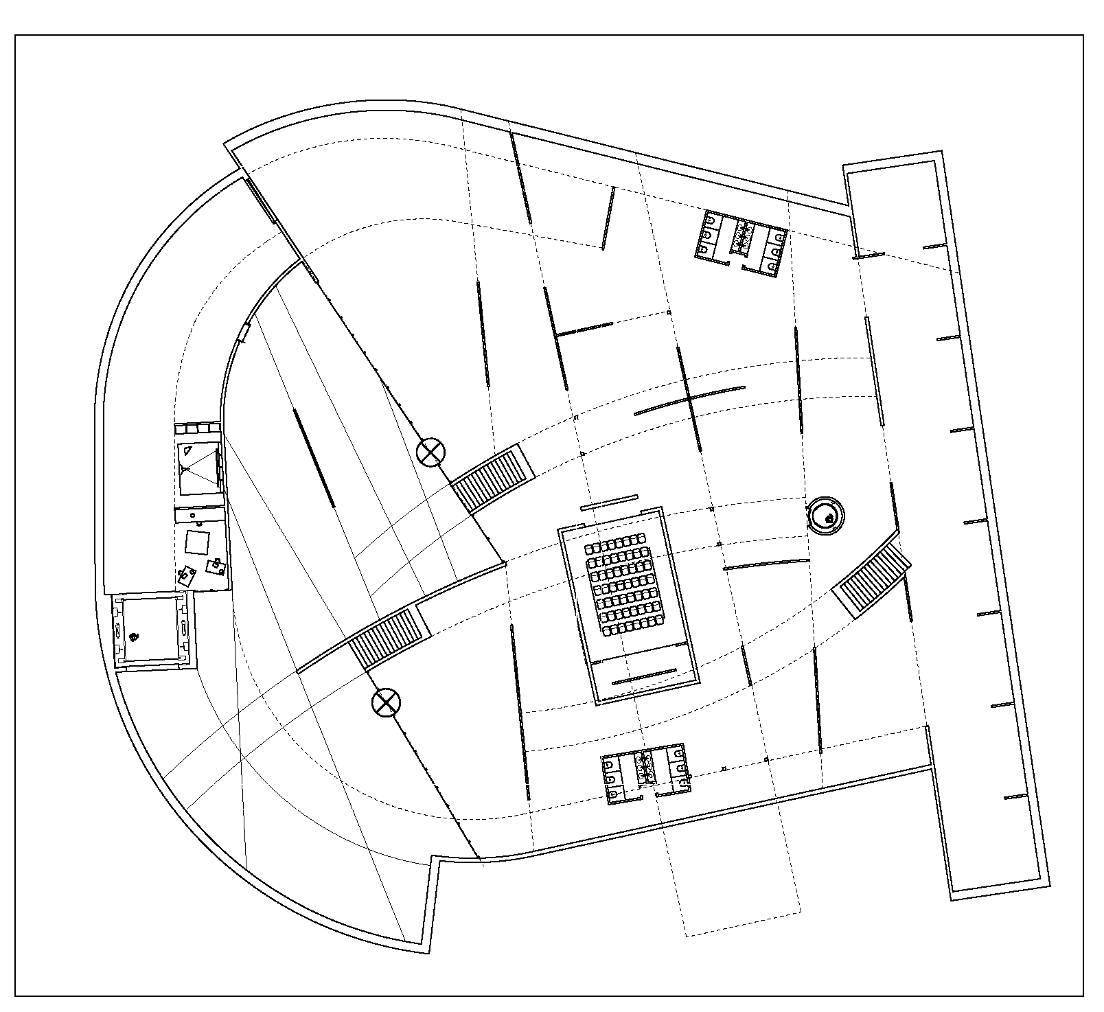
Museum for Mojave Desert / 2018
done with Professors Ben Aranda and Nima Javidi


Date and Percolate is a Land Art Museum outside of Las Vegas. This museum, rather than attempting to mimic the sublime scale and elementality of the landscape for which its collection was intended, organizes itself in order to reproduce other characteristics of the desert such as the desert’s capacity to disorient and seduce animals within.


Mark